W harmonii z holenderską architekturą
Blockprofile NL - "okna holenderskie"
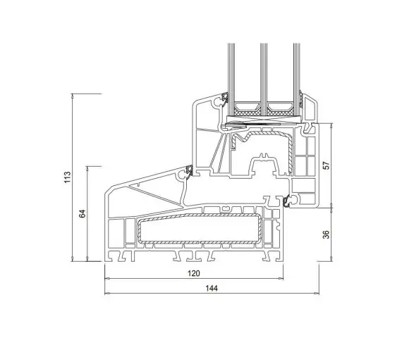
Nowe systemy IDEAL 7000 NL oraz IDEAL 8000 NL są idealnie dopasowane do holenderskiego stylu. Systemy NL pasują do typowej dla rynku holenderskiego głębokości zabudowy ram wynoszącej 120 mm, które mogą być łączone z różnymi wariantami skrzydeł o szerokości 85 mm. Bardzo szerokie ościeżnice, zaopatrzone w zewnętrzne przylgi umożliwiają w łatwy i estetyczny sposób montaż okien w budynku wykonanym z cegły licowej (klinkieru) bez dodatkowej obróbki murarskiej.
0,76 Uw dla Ug = 0,5
2 Uszczelki
5 Komór
Ciepło
Nowe systemy Blockprofile NL 85 mm to odpowiedź na sukcesywnie zaostrzane w całej Europie wymagania w zakresie przenikalności cieplnej okien i drzwi. Nowe konstrukcje, m.in. dzięki wykorzystaniu szerszych skrzydeł, umożliwiających zastosowanie pakietów szybowych o szerokości do 51 mm, dają możliwość uzyskania doskonałych parametrów cieplnych okien. Natomiast same profile charakteryzujące się współczynnikiem przenikania ciepła na poziomie Uf = 1,0 – 1,1 W/m2K znajdują się w absolutnej czołówce pod względem izolacyjności termicznej. Szerokość złożenia profili rama/skrzydło wynosząca zaledwie 113 mm pozwala na maksymalizowanie powierzchni przeszklonych, co jest również zgodne z obecnymi trendami projektowymi.
Atrakcyjne wzornictwo
Nowe systemy rozwijane były w oparciu o charakterystyczną dla Aluplast filozofię rozwoju systemów w oparciu o warianty z uszczelnieniem zewnętrznym (AD) i środkowym (MD). Charakteryzuje je przy tym zróżnicowany design. Nieco bardziej tradycyjny, doskonale wpisujący się w obecne wymagania rynkowe Ideal 7000 NL z 15-stopniowymi skosami, kontrastuje z nieco bardziej kubistycznym, charakteryzującym się prostopadłymi powierzchniami o zaledwie 7- stopniowych skosach systemem Ideal 8000 NL. Mimo analogicznej szerokości profili wynoszącej 113 mm, zróżnicowana jest również ich optyka. W systemie Ideal 8000 NL niższe skrzydło jest mocniej schowane za wyższą ramą, podczas gdy w Ideal 7000 NL zewnętrzna powierzchnia widoczna skrzydła jest większa.
Parametry techniczne
| Głębokość zabudowy ramy | 120 mm |
| Szerokość skrzydeł | 85 mm |
| Szerokość złożenia rama + skrzydło | 113 mm |
| Możliwość montażu | Bez dodatkowej obróbki murarskiej w budynkach z cegły licowej (klinkieru) |
| Pakiety szybowe | Do 51 mm |
| Współczynnik Uf profili | 1,0 – 1,1 W/m²K |
Zamów darmową wycenę! Skontaktuj się z nami
Nie wiesz co wybrać? Skontaktuj się z nami. Wycenimy Twoją inwestycję i wybierzemy najlepsze rozwiązania dla Twoich potrzeb.
Opinie naszych klientów to najlepszy dowód jakości i zaangażowania w każdą współpracę.
Sprawdź zadowolenie naszych klientów z marki GLAZE
Opinie klientów
Kontakt
Darmowa wycena
Kontakt
Adres
Ul. Zacisze 5a/01 (Zacisze Park)
65-775 Zielona Góra
Dane firmy
GLAZE Group Sp. z o.o.
NIP: 9252148020
REGON: 540349960
KRS: 0001142282
Zobacz podobne produkty
Sprawdź co dla naszych klientów jest najważniejsze i o co pytają najczęściej
FAQ – pytania i odpowiedzi
Nie znalazłeś odpowiedzi na swoje pytanie?
Zostaw tylko imię, adres e-mail i numer telefonu – oddzwonimy i wspólnie znajdziemy najlepsze rozwiązanie dla Twojego domu i ogrodu
